Don't lose your saved plans!  Create an account to access your saves whenever you want.  
          See our Terms & Conditions and Privacy Policy.
        
      - Jump to:
- All (4)
- Floor plans (2)
Key Specs
3190
sq ft
3
Beds
3.5
Baths
1
Floors
3
Garages
Get Personalized Help
    We do our best to get back to you within 24 - 48 business hours.
  Need an answer faster?  Call now...
Phone: 1-877-222-1762
  Phone: 1-877-222-1762
Hours:     
  Ready for Your Call 7 Days a Week
    Every Day 7 am - 8:30 pm Eastern
  See our Terms & Conditions and Privacy Policy.
Wow!
      Cost to Build Reports
      Only $1.99 Right Now
Use Code CTBFALL
    Use Code CTBFALL
         Our Cost to Build Report gives you a personalized estimate for building your home, based on your location, plan, and materials.
      
      
        Get Cost To Build Report
        
    Limit one per order.
      Residential Construction Guide
Learn Building Basics
This downloadable, 26-page guide is full of diagrams and details about plumbing, electrical, and more.
PLAN 5-243
This plan can be customized
Tell us about your desired changes so we can prepare an estimate for the design service. Click the button to submit your request for pricing, or call 1-877-222-1762 for assistance.
Plan Description
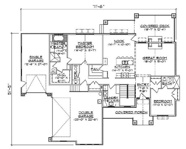
            This ranch design floor plan is 3190 sq ft and has 3 bedrooms and 3.5 bathrooms.          
          
          Floor Plans
Full Specs & Features
Dimension
Depth : 51'
Height : 24'
Width : 72'
Area
Lower Floor : 1429 sq/ft
Main Floor : 1761 sq/ft
* Total Square Footage typically only includes conditioned space and does not include garages, porches, bonus rooms, or decks.
                                  Ceiling
Main Ceiling : 9'
Roof
Primary Pitch : 7:12
Exterior Wall Framing
Framing : 2"x4"
Code Compliance
Irc 2006
What's Included In This Plan Set
                  All plans are drawn at ¼" scale or larger and include the below. IMPORTANT NOTE: Study Set Includes: floor plans (main / upper / basement (if available) ) - exterior elevations.
                » See important
                  information before purchasing.
                          - Foundation Plan(s): This page shows all necessary notations and dimensions including footings, support columns, walls, and excavated/unexcavated areas.
- Floor Plan(s): Detailed plans, drawn to 1/4" scale for each level showing room dimensions, wall partitions, windows, etc. as well as the location of electrical outlets and switches.
- Exterior Elevations: A blueprint picture of all four sides showing exterior materials and measurements.
- Overhead Roof Plan(s): A view of the home from above showing roof pitch, peaks, valleys, and other details.
- Cross Section(s): A slice of the home from roof to foundation, showing relationships between floors, roof, and foundation.
- Construction Notes / Detail(s): Shows basic parts and assemblies recommended for the home so the builder can see how things come together.
Questions? Call 1-877-222-1762
            Plan Set
PDF Set:
$1700.00
                $1700.00
PDF plan sets are best for fast electronic delivery and inexpensive local printing.
                              Reproducible Set:
$1700.00
                $1700.00
For inexpensive local printing / making minor adjustments by hand. 1 printed set, typically on Bond paper.
                              Study Set:
$297.50
                $297.50
One electronic set for bidding purposes only. Not a legal building set for construction.
                          Foundation
Basement:
$0.00
                  $0.00
Ideal for level lot, lower level of home partially or fully underground.
                              Additional Options
Right-Reading Reverse:
$425.00
                $425.00
Choose this option to reverse your plans and to have the text and dimensions readable.
                              Audio Video Design:
$85.00
                $85.00
Receive an overlay sheet with suggested placement of audio and video components.
                              Construction Guide:
$33.15
                $33.15
Educate yourself about basic building ideas with these four detailed diagrams that discuss electrical, plumbing, mechanical, and structural topics.
                              Lighting Design:
$170.00
                $170.00
Receive an overlay sheet with suggested placement of lighting fixtures.
                          * Alternate Foundations may take time to prepare.
** Options with a fee may take time to prepare. Please call to confirm.
Unless you buy an “unlimited” plan set or a multi-use license you may only build one home from a set of plans. Please call to verify if you intend to build more than once. Plan licenses are non-transferable and cannot be resold.
          
         
       
       
                 
                         
                         
                 
                 
                 
                 
                 
                 
                 
                 
                 
                 
                        


