- Jump to:
- All (5)
- Floor plans (3)
Phone: 1-877-222-1762
See our Terms & Conditions and Privacy Policy.
Use Code CTB2026
Residential Construction Guide
Learn Building Basics
This downloadable, 26-page guide is full of diagrams and details about plumbing, electrical, and more.
PLAN 1064-11
This plan can be customized
Tell us about your desired changes so we can prepare an estimate for the design service. Click the button to submit your request for pricing, or call 1-877-222-1762 for assistance.
Plan Description
Floor Plans
Full Specs & Features
Dimension
Depth : 75'
Height : 25' 3"
Width : 51'
Area
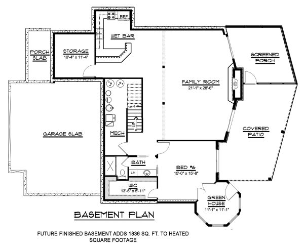
Basement : 1836 sq/ft
Decks : 582 sq/ft
Garage : 690 sq/ft
Main Floor : 1836 sq/ft
Patios : 370 sq/ft
Porch : 304 sq/ft
Upper Floor : 1271 sq/ft
Ceiling
Garage Ceiling : 10'
Lower Ceiling : 9'
Main Ceiling : 9'
Upper Ceiling Ft : 8'
Roof
Roof Framing : Conventional
Roof Load : 30 psf
Roof Type : Asphalt/Shingle
Exterior Wall Framing
Exterior Wall Finish : Siding/Stone/Shake
Framing : 2x6
Insulation : R-19
Bedroom Features
Main Floor Master Bedroom
Split Bedrooms
Walk In Closet
Kitchen Features
Kitchen Island
Additional Room Features
Den Office Study Computer
Great Room Living Room
Main Floor Laundry
Master Sitting Area
Storage Area
Unfinished Future Space
Garage Features
Side Entry Garage
Outdoor Spaces
Covered Front Porch
Rooms
Bedroom 2:
width 13' 8" x depth 12' 5"
Bedroom 3:
width 11' 6" x depth 13'
Bedroom 4:
width 12' x depth 10' 9"
Bedroom 5:
width 12' x depth 13' 7"
Den:
width 10' 1" x depth 12' 3"
Dining:
width 11' 1" x depth 9' 3"
Foyer:
width 10' 4" x depth 6' 9"
Front Porch:
width 6' x depth 13'
Garage:
width 23' 8" x depth 23' 5"
Great Room:
width 23' 5" x depth 19' 6"
Kitchen:
width 12' 4" x depth 9' 3"
Laundry:
width 6' 2" x depth 7'
Master Bedroom:
width 15' x depth 15' 8"
Sitting Area:
width 11' 1" x depth 11' 1"
Storage:
width 19' 8" x depth 5' 8"
What's Included In This Plan Set
All plans are drawn at ¼” scale or larger and include :
- Foundation Plan: This page shows all necessary notations and dimensions including support columns, walls, and excavated/unexcavated areas.
- Exterior Elevations: Views of the home from all four sides showing exterior materials and measurements.
- Floor Plan(s): Detailed plans for each level showing room dimensions, wall partitions, windows and doors, etc.
- Cross Section: A slice of the home from roof to foundation, showing important details like stairs and wall construction.
- Overhead Roof Plan(s): A view of the home from above showing roof pitch, peaks, valleys, and other details.
- Construction Notes and Details: Shows the builder how things come together, like walls, the chimney, insulation, and more.
Plan Set
$1450.00
$1800.00
$2050.00
$2700.00
$3250.00
Foundation
$0.00
$295.00
$295.00
$395.00
$395.00
Framing
$0.00
$200.00
Additional Options
$275.00
$600.00
$165.00
$395.00
$39.00
$165.00
$1175.00
* Alternate Foundations may take time to prepare.
** Options with a fee may take time to prepare. Please call to confirm.



