- Jump to:
- All (14)
- Floor plans (2)
Key Specs
3048
sq ft
4
Beds
3
Baths
2
Floors
2
Garages
Phone: 1-877-222-1762
See our Terms & Conditions and Privacy Policy.
Use Code CTBFALL
Residential Construction Guide
Learn Building Basics
This downloadable, 26-page guide is full of diagrams and details about plumbing, electrical, and more.
PLAN 1092-52
3048
sq ft
4
Beds
3
Baths
2
Floors
2
Garages
This plan can be customized
Tell us about your desired changes so we can prepare an estimate for the design service. Click the button to submit your request for pricing, or call 1-877-222-1762 for assistance.
Plan Description
Floor Plans
Full Specs & Features
Dimension
Depth : 60'
Height : 27' 6"
Width : 105'
Area
Garage : 1500 sq/ft
Main Floor : 1896 sq/ft
Porch : 1035 sq/ft
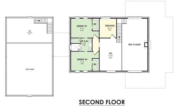
Upper Floor : 1152 sq/ft
Ceiling
Main Ceiling : 9'
Upper Ceiling Ft : 8'
Roof
Primary Pitch : 12/12
Roof Framing : PEMB and Stick
Roof Type : Metal
Secondary Pitch : 5/12
Exterior Wall Framing
Exterior Wall Finish : Metal
Framing : Z8 and 2x4
Bedroom Features
Main Floor Bedrooms
Main Floor Master Bedroom
Upstairs Bedrooms
Walk In Closet
Kitchen Features
Eating Bar
Walk In Pantry Cabinet Pantry
Additional Room Features
Den Office Study Computer
Great Room Living Room
Loft
Main Floor Laundry
Garage Features
Side Entry Garage
Outdoor Spaces
Wrap Around Porch
More
Jack & Jill Bath
What's Included In This Plan Set
All plans are drawn at ¼” scale or larger and include :
- Foundation Plan: This page shows all necessary notations and dimensions including support columns, walls, and excavated/unexcavated areas.
- Exterior Elevations: Views of the home from all four sides showing exterior materials and measurements.
- Floor Plan(s): Detailed plans for each level showing room dimensions, wall partitions, windows and doors, etc.
- Cross Section: A slice of the home from roof to foundation, showing important details like stairs and wall construction.
- Overhead Roof Plan(s): A view of the home from above showing roof pitch, peaks, valleys, and other details.
- Construction Notes and Details: Shows the builder how things come together, like walls, the chimney, insulation, and more.
Plan Set
$1487.50
Foundation
$0.00
Framing
$0.00
$335.75
Additional Options
$212.50
$140.25
$33.15
$1912.50
* Alternate Foundations may take time to prepare.
** Options with a fee may take time to prepare. Please call to confirm.



