- Jump to:
- All (3)
- Floor plans (2)
Key Specs
3014
sq ft
4
Beds
2
Baths
2
Floors
2
Garages
Phone: 1-877-222-1762
See our Terms & Conditions and Privacy Policy.
Use Code CTBFALL
Residential Construction Guide
Learn Building Basics
This downloadable, 26-page guide is full of diagrams and details about plumbing, electrical, and more.
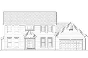
PLAN 328-392
This plan can be customized
Tell us about your desired changes so we can prepare an estimate for the design service. Click the button to submit your request for pricing, or call 1-877-222-1762 for assistance.
Plan Description
Floor Plans
Full Specs & Features
Dimension
Depth : 50'
Width : 66' 8"
Area
First Floor: 1649 sq/ft height 9'
Second Floor: 1365 sq/ft height 9'
Roof
Roof Framing : Conventional
Roof Type : Asphalt
Exterior Wall Framing
Exterior Wall Finish : Brick/Shingle
Framing : Wood - 2x6
Bedroom Features
Fireplace
Formal Dining Room
Upstairs Master Bedrooms
Walk In Closet
Kitchen Features
Breakfast Nook
Kitchen Island
Additional Room Features
Den Office Study Computer
Great Room Living Room
Main Floor Laundry
Rooms
Bedroom 2:
158 sq/ft width 12' x depth 13' 2"
Bedroom 3:
139 sq/ft width 11' 6" x depth 12' 2"
Bedroom 4:
164 sq/ft width 13' x depth 12' 8"
Dinette:
130 sq/ft width 13' x depth 10'
Dining Room:
162 sq/ft width 12' x depth 13' 6"
Garage:
816 sq/ft width 34' x depth 24'
Great Room:
410 sq/ft width 26' 6" x depth 15' 6"
Master Bedroom:
267 sq/ft width 13' 10" x depth 19' 4"
Study:
141 sq/ft width 11' x depth 12' 10"
What's Included In This Plan Set
All plans are drawn at ¼” scale or larger and include :
- Foundation Plan: This page shows all necessary notations and dimensions including support columns, walls, and excavated/unexcavated areas.
- Exterior Elevations: Views of the home from all four sides showing exterior materials and measurements.
- Floor Plan(s): Detailed plans for each level showing room dimensions, wall partitions, windows and doors, etc.
- Cross Section: A slice of the home from roof to foundation, showing important details like stairs and wall construction.
- Overhead Roof Plan(s): A view of the home from above showing roof pitch, peaks, valleys, and other details.
- Construction Notes and Details: Shows the builder how things come together, like walls, the chimney, insulation, and more.
Plan Set
$616.25
$722.50
$850.00
$1785.00
$552.50
Foundation
$0.00
Framing
$0.00
Additional Options
$51.00
$85.00
$33.15
$170.00
$34.00
* Alternate Foundations may take time to prepare.
** Options with a fee may take time to prepare. Please call to confirm.



