- Jump to:
- All (6)
- Floor plans (3)
Key Specs
2505
sq ft
3
Beds
3
Baths
0
Floors
2
Garages
Phone: 1-877-222-1762
See our Terms & Conditions and Privacy Policy.
Use Code CTBFALL
Residential Construction Guide
Learn Building Basics
This downloadable, 26-page guide is full of diagrams and details about plumbing, electrical, and more.
PLAN 21-417
This plan can be customized
Tell us about your desired changes so we can prepare an estimate for the design service. Click the button to submit your request for pricing, or call 1-877-222-1762 for assistance.
Plan Description
Floor Plans
Full Specs & Features
Dimension
Depth : 53' 6"
Height : 26' 4"
Width : 79' 4"
Area
Basement Unfinished: 2100 sq/ft
First Floor: 2100 sq/ft
Garage: 569 sq/ft
Second Floor: 405 sq/ft
Storage: 249 sq/ft
Roof
Primary Pitch : 12:12
Roof Framing : Conventional
Roof Type : Shingle
Exterior Wall Framing
Exterior Wall Finish : Brick/Stucco
Framing : Wood - 2x4
Additional Room Features
Den Office Study Computer
Great Room Living Room
Open Floor Plan
Vaulted / Cathedral Ceilings
Workshop
Rooms
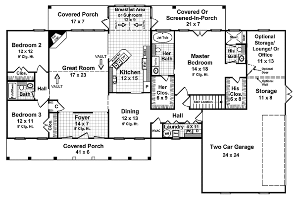
Bedroom 2:
144 sq/ft width 12' x depth 12'
Bedroom 3:
132 sq/ft width 12' x depth 11'
Breakfast Area:
108 sq/ft width 12' x depth 9'
Covered Porch:
246 sq/ft width 41' x depth 6'
Dining Room:
156 sq/ft width 12' x depth 13'
Flex Room:
435 sq/ft width 13' x depth 33' 6"
Foyer:
98 sq/ft width 14' x depth 7'
Garage:
576 sq/ft width 24' x depth 24'
Kitchen:
180 sq/ft width 12' x depth 15'
Laundry Room:
44 sq/ft width 4' x depth 11'
Master Bedroom:
252 sq/ft width 14' x depth 18'
Master Closet - Hers:
54 sq/ft width 6' x depth 9'
Master Closet - His:
48 sq/ft width 6' x depth 8'
Porch - Front:
246 sq/ft width 41' x depth 6'
Porch - Screened:
147 sq/ft width 21' x depth 7'
What's Included In This Plan Set
- Cover Sheet: Color rendering or black and white image of the exterior
- Foundation Plan(s): Drawn to 1/4" scale, this page shows all necessary notations and dimensions including support columns, walls and excavated and unexcavated areas.
- Floor Plan(s): Detailed plans, drawn to 1/4" scale for each level showing room dimensions, wall partitions, windows, etc. as well as the location of electrical outlets and switches.
- Exterior Elevations: A blueprint picture of all four sides showing exterior materials and measurements.
- Interior Elevations: Where applicable, each house plan set includes relevant interior elevations, including cabinets, cabinet details, columns and walls with unique conditions.
- Overhead Roof Plan(s): Overhead view of roof.
- Cross Section(s): A vertical cutaway view of the house from roof to foundation showing details of framing, construction, flooring and roofing.
- Electrical Plan(s): Lighting, outlets, switches, detectors, etc.
- Kitchen Cabinet Elevation(s): Scaled drawings of interior cabinets.
- Construction Notes and Detail(s): Shows basic parts and assemblies recommended for the home so the builder can see how things come together.
- Framing Detail(s): Ceiling joist size and spacing and layouts. If included, the framing layout is intended to be a suggested layout only. Design loads and weather conditions vary by region. As a result the size, spacing, and layout of all structural elements in this home design may need approval by a structural engineer or code official based on your specific site location.
- Wall Section(s): Exterior wall and roof sections and specialty details.
Plan Set
$1317.50
$1402.50
$1615.00
Foundation
$0.00
$0.00
Framing
$0.00
Additional Options
$127.50
$51.00
$140.25
$33.15
$140.25
$127.50
$42.50
* Alternate Foundations may take time to prepare.
** Options with a fee may take time to prepare. Please call to confirm.
 
       
       
                 
                         
                         
                         
                 
                 
                 
                 
                 
                 
                 
                 
                 
                 
                         
                         
                        


