- Jump to:
- All (4)
- Floor plans (2)
Key Specs
2501
sq ft
4
Beds
3
Baths
2
Floors
2
Garages
Phone: 1-877-222-1762
See our Terms & Conditions and Privacy Policy.
Use Code CTB2026
Residential Construction Guide
Learn Building Basics
This downloadable, 26-page guide is full of diagrams and details about plumbing, electrical, and more.
PLAN 20-1793
This plan can be customized
Tell us about your desired changes so we can prepare an estimate for the design service. Click the button to submit your request for pricing, or call 1-877-222-1762 for assistance.
Plan Description
Floor Plans
Full Specs & Features
Dimension
Depth : 40'
Height : 32' 10"
Width : 62'
Area
First Floor: 1248 sq/ft height 9'
Garage: 503 sq/ft height 9'
Second Floor: 1253 sq/ft height 8'
Ceiling
Main Ceiling : 9'
Upper Ceiling Ft : 8'
Roof
Primary Pitch : 10:12
Roof Framing : Truss
Secondary Pitch : 8:12
Exterior Wall Framing
Exterior Wall Finish : Brick/Siding
Framing : 2"x6"
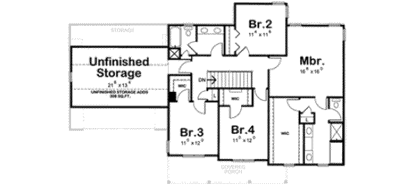
Rooms
Bedroom 2:
130 sq/ft width 11' 4" x depth 11' 6"
Bedroom 3:
132 sq/ft width 11' x depth 12'
Bedroom 4:
132 sq/ft width 11' x depth 12'
Dining Room:
158 sq/ft width 11' 3" x depth 14' 1"
Family Room:
387 sq/ft width 25' 10" x depth 15'
Flex Room:
166 sq/ft width 12' 10" x depth 13'
Garage:
497 sq/ft width 21' 4" x depth 23' 4"
Kitchen:
195 sq/ft width 13' x depth 15'
Master Bedroom:
250 sq/ft width 16' 8" x depth 15'
What's Included In This Plan Set
- Cover Sheet: Front elevation and informative reference sections including: general notes and design criteria
- Foundation Plan(s): Drafted at 1/4" scale. Poured or block basement or slab foundations are standard. Basement foundations show the HVAC equipment, structural information, steel beam and pole locations and the direction and spacing of the floor system above. Alternate foundations are available for a fee.
- Floor Plan(s): 1/4" scale. Fully dimensioned from stud to stud for ease of framing. The detailed drawings include such things as structural header locations, framing layout and kitchen layout.
- Exterior Elevations: Drafted at 1/4" scale for the front and 1/8" scale for the rear and sides. All elevations are noted and an aerial view of the roof is provided, showing all hips, valleys and ridges.
- Overhead Roof Plan(s): A view of the home from above showing roof pitch, peaks, valleys, and other details.
- Cross Section(s): A slice of the home from roof to foundation, showing relationships between floors, roof, and foundation.
- Electrical Plan(s): Illustrated on a separate page for clarity, the electrical plan shows suggested electrical layout for the main and second level floor plans. Typical wall and stair sections are provided to further explain construction of these areas.
- Kitchen Cabinet Elevation(s): Useful for the cabinet and bidding process, this page shows all kitchen and bathroom cabinets as well as any other cabinet elevations. Not included with all plans, please call for details.
- Construction Notes / Detail(s): Shows basic parts and assemblies recommended for the home so the builder can see how things come together.
Plan Set
$1151.75
$1576.75
$1844.50
Foundation
$0.00
$293.25
$293.25
$331.50
Framing
$0.00
$293.25
Additional Options
$293.25
$255.00
$140.25
$33.15
$140.25
$250.75
$509.15
* Alternate Foundations may take time to prepare.
** Options with a fee may take time to prepare. Please call to confirm.



