- Jump to:
- All (5)
- Floor plans (2)
Phone: 1-877-222-1762
See our Terms & Conditions and Privacy Policy.
Use Code CTBFALL
Residential Construction Guide
Learn Building Basics
This downloadable, 26-page guide is full of diagrams and details about plumbing, electrical, and more.
PLAN 72-148
This plan can be customized
Tell us about your desired changes so we can prepare an estimate for the design service. Click the button to submit your request for pricing, or call 1-877-222-1762 for assistance.
Plan Description
Floor Plans
Full Specs & Features
Dimension
Depth : 42'
Height : 32'
Width : 52'
Area
First Floor: 1206 sq/ft height 9'
Second Floor: 1254 sq/ft height 8'
Roof
Primary Pitch : 7:12
Roof Framing : Conventional
Roof Type : Shingle
Exterior Wall Framing
Exterior Wall Finish : Siding
Framing : Wood - 2x6
Bedroom Features
Upstairs Master Bedrooms
Walk In Closet
Kitchen Features
Breakfast Nook
Kitchen Island
Additional Room Features
Den Office Study Computer
Great Room Living Room
Loft
Workshop
Garage Features
Side Entry Garage
Lot Characteristics
Suited For Corner Lot
Outdoor Spaces
Balcony
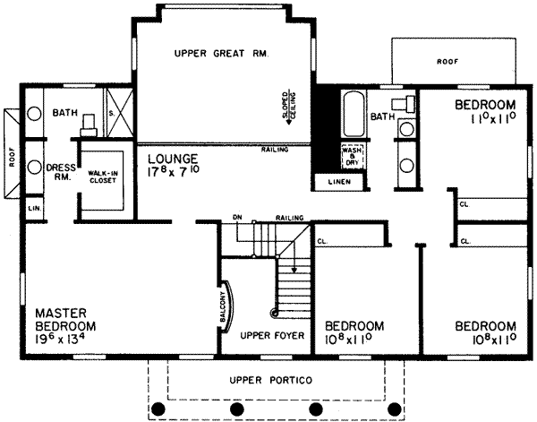
Rooms
3rd BR Closet:
14 sq/ft width 2' 1" x depth 7' 2"
Basement Foundation:
800 sq/ft width 28' 7" x depth 28'
Bedroom 2:
117 sq/ft width 10' 8" x depth 11'
Bedroom 2 Closet:
14 sq/ft width 2' 1" x depth 7' 2"
Bedroom 3:
117 sq/ft width 10' 8" x depth 11'
Bedroom 3 Closet:
14 sq/ft width 2' 1" x depth 7' 2"
Bedroom 4:
121 sq/ft width 11' x depth 11'
Bedroom 4 Closet:
14 sq/ft width 2' 1" x depth 7' 2"
Bonus Room - Finished:
315 sq/ft width 17' 8" x depth 17' 10"
Den/Office or Bedroom 1:
104 sq/ft width 12' x depth 8' 8"
Dining Room:
146 sq/ft width 11' x depth 13' 4"
Foyer:
91 sq/ft width 9' 4" x depth 9' 10"
Garage:
390 sq/ft width 21' 8" x depth 18'
Garage Storage:
41 sq/ft width 11' 5" x depth 3' 8"
Gathering Room:
353 sq/ft width 17' 8" x depth 20'
Hall:
42 sq/ft width 3' x depth 14'
Hall Closet:
7 sq/ft width 1' 6" x depth 5'
Kitchen:
259 sq/ft width 19' 6" x depth 13' 4"
Master Bathroom:
147 sq/ft width 11' 1" x depth 13' 4"
Master Bedroom:
259 sq/ft width 19' 6" x depth 13' 4"
Master Closet:
42 sq/ft width 5' 4" x depth 8'
Porch - Front:
157 sq/ft width 26' 2" x depth 6'
Powder Room:
27 sq/ft width 5' 4" x depth 5' 1"
What's Included In This Plan Set
All plans are drawn at ¼” scale or larger and include :
- Foundation Plan: This page shows all necessary notations and dimensions including support columns, walls, and excavated/unexcavated areas.
- Exterior Elevations: Views of the home from all four sides showing exterior materials and measurements.
- Floor Plan(s): Detailed plans for each level showing room dimensions, wall partitions, windows and doors, etc.
- Cross Section: A slice of the home from roof to foundation, showing important details like stairs and wall construction.
- Overhead Roof Plan(s): A view of the home from above showing roof pitch, peaks, valleys, and other details.
- Construction Notes and Details: Shows the builder how things come together, like walls, the chimney, insulation, and more.
Plan Set
$1013.17
$1130.98
$1248.79
$895.36
Foundation
$0.00
Additional Options
$165.75
$51.00
$420.75
$127.50
$250.75
$33.15
$127.50
$72.25
$0.00
$845.75
* Alternate Foundations may take time to prepare.
** Options with a fee may take time to prepare. Please call to confirm.



