- Jump to:
- All (7)
- Floor plans (3)
Key Specs
2397
sq ft
3
Beds
2.5
Baths
2
Floors
2
Garages
Phone: 1-877-222-1762
See our Terms & Conditions and Privacy Policy.
Use Code CTBFALL
Residential Construction Guide
Learn Building Basics
This downloadable, 26-page guide is full of diagrams and details about plumbing, electrical, and more.
PLAN 929-860
This plan can be customized
Tell us about your desired changes so we can prepare an estimate for the design service. Click the button to submit your request for pricing, or call 1-877-222-1762 for assistance.
Plan Description
Floor Plans
Full Specs & Features
Dimension
Depth : 58' 8"
Height : 28' 10"
Width : 86'
Area
Bonus: 444 sq/ft height 9'
First Floor: 1768 sq/ft height 9'
Garage: 654 sq/ft height 9'
Porch: 982 sq/ft
Second Floor: 629 sq/ft height 9'
Roof
Primary Pitch : 12:12
Roof Framing : Conventional
Roof Type : Asphalt
Exterior Wall Framing
Exterior Wall Finish : Siding
Framing : Wood - 2x4
Bedroom Features
Fireplace
Formal Dining Room
Main Floor Master Bedroom
Walk In Closet
Kitchen Features
Breakfast Nook
Additional Room Features
Great Room Living Room
Unfinished Future Space
Outdoor Spaces
Courtyard
Covered Front Porch
Covered Rear Porch
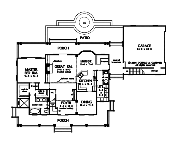
Rooms
Bedroom 2:
143 sq/ft width 11' 4" x depth 12' 8"
Bedroom 3:
143 sq/ft width 11' 4" x depth 12' 8"
Bonus Room - Finished:
364 sq/ft width 15' x depth 24' 4"
Breakfast:
83 sq/ft width 11' 4" x depth 7' 4"
Dining Room:
147 sq/ft width 11' 4" x depth 13'
Foyer:
136 sq/ft width 9' 4" x depth 14' 8"
Great Room:
282 sq/ft width 17' 8" x depth 16'
Kitchen:
139 sq/ft width 11' 4" x depth 12' 4"
Master Bedroom:
224 sq/ft width 16' x depth 14'
Utility Room:
64 sq/ft width 6' 8" x depth 9' 8"
What's Included In This Plan Set
- Cover Sheet: A rendering of the front exterior of the house.
- Foundation Plan(s): This plan gives the foundation layout, including support walls, excavated and unexcavated areas, if any, foundation notes and details, and floor framing.
- Floor Plan(s): These plans show the layout of each floor of the house. Rooms and interior spaces are carefully dimensioned and keys are given for cross-section details provided later in the plans, as well as window and door schedules. These plans may also show the location of kitchen appliances and plumbing fixtures, and may suggest locations for electrical fixtures, switches and outlets.
- Exterior Elevations: Included are front, rear, left and right sides of the house. Exterior materials, details and measurements are also given.
- Interior Elevations: The interior elevation drawings show a suggested layout design of cabinets, utility rooms, fireplaces, bookcases, built-in units and other special interior features depending on the nature and complexity of the item.
- Overhead Roof Plan(s): The roof plan shows a bird's eye view of the overall layout of the roof, ridges, valleys, and slopes.
- Cross Section(s): Important changes in floor, ceiling and roof heights or the relationship of one level to another are called out. Also shown, when applicable, are exterior details such as railing and banding.
- Construction Notes / Detail(s): Shows basic parts and assemblies recommended for the home so the builder can see how things come together.
- Door / Window Schedule(s): Sizes, quantities and descriptions of all doors and windows shown on the plan.
- Structural Information: Overall layout and necessary details for the ceiling, second-floor framing (if applicable) and roof construction. If trusses are used, it's suggested that you use a local truss manufacturer to design your trusses to comply with your local codes and regulations. Important: design loads and weather conditions vary by region. As a result the size, spacing, and layout of all structural elements in this home design may need approval by a structural engineer or code official based on your specific site location.
- Code Drawn To: Each plan is designed to be consistent with CABO One and Two Family Dwelling Code or the International Residential Code in effect at the time the plan was created. Modifications may be necessary to meet applicable building codes, ordinances, local climatic, and geographical design criteria. Consult a builder, architect or other construction professional as necessary. Manufacturer instructions should be followed for all materials, appliances, and systems. Heating/air conditioning layouts, plumbing pipe layouts, and electrical wiring layouts are not included. Consult a local mechanical contractor for systems suitable for local climate conditions.
Plan Set
$1381.25
$2401.25
$1211.25
Foundation
$0.00
$365.50
$365.50
Framing
$0.00
$365.50
Additional Options
$225.25
$140.25
$33.15
$140.25
$289.00
* Alternate Foundations may take time to prepare.
** Options with a fee may take time to prepare. Please call to confirm.



