- Jump to:
- All (5)
- Floor plans (1)
Key Specs
2350
sq ft
4
Beds
3.5
Baths
1
Floors
2
Garages
Phone: 1-877-222-1762
See our Terms & Conditions and Privacy Policy.
Use Code CTB2026
Residential Construction Guide
Learn Building Basics
This downloadable, 26-page guide is full of diagrams and details about plumbing, electrical, and more.
PLAN 22-648
This plan can be customized
Tell us about your desired changes so we can prepare an estimate for the design service. Click the button to submit your request for pricing, or call 1-877-222-1762 for assistance.
Plan Description
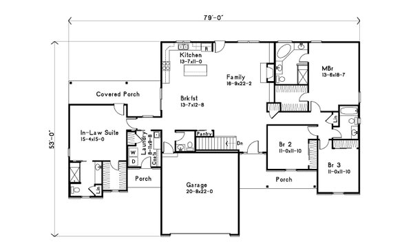
Floor Plans
Full Specs & Features
Dimension
Depth : 53'
Height : 23'
Width : 79'
Area
Garage : 454 sq/ft
Main Floor : 2350 sq/ft
Porch : 132 sq/ft
Ceiling
Garage Ceiling : 10'
Main Ceiling : 9'
Roof
Primary Pitch : 7/12
Roof Framing : Truss
Roof Load : 40 psf total
Secondary Pitch : 9/12
Exterior Wall Framing
Framing : 2x4
Insulation : R-13
Bedroom Features
Guest Suite
Main Floor Master Bedroom
Walk In Closet
Kitchen Features
Kitchen Island
Additional Room Features
Family Room Keeping Room
Main Floor Laundry
Mud Room
Garage Features
Front Entry Garage
Entryway
Friend S Entry
Outdoor Spaces
Covered Front Porch
Covered Rear Porch
What's Included In This Plan Set
- Foundation Plan(s): This page shows all necessary notations and dimensions including footings, support columns, walls, and excavated/unexcavated areas.
- Floor Plan(s): Detailed plans for each level showing room dimensions, wall partitions, windows and doors, fixture locations, and ceiling treatments.
- Exterior Elevations: Views of the home from all four sides showing exterior materials, roof slope, ridge heights, siding and trim notes.
- Overhead Roof Plan(s): A view of the home from above showing roof pitch, peaks, valleys, and other details.
- Cross Section(s): A slice of the home from roof to foundation, showing relationships between floors, roof, and foundation.
- Electrical Plan(s): Shows the location of lights, receptacles, switches, etc. Some plans that do not include an electrical plan may have it available for an additional fee.
- Kitchen Cabinet Elevation(s): Detailed drawings of kitchen cabinet elevations.
- Construction Notes / Detail(s): Shows basic parts and assemblies recommended for the home so the builder can see how things come together.
- Wall Section(s): Detailed drawings showing wall connections, from foundation to the roof, wall connections to foundation, window installation, siding installation, stair details, and more.
- Stair Detail(s): Drawings showing stair details.
Plan Set
$918.00
$1020.00
Foundation
$0.00
Framing
$0.00
$136.00
Additional Options
$127.50
$140.25
$33.15
$102.00
* Alternate Foundations may take time to prepare.
** Options with a fee may take time to prepare. Please call to confirm.



