- Jump to:
- All (3)
- Floor plans (1)
Key Specs
2350
sq ft
3
Beds
2
Baths
1
Floors
3
Garages
Phone: 1-877-222-1762
See our Terms & Conditions and Privacy Policy.
Use Code CTBFALL
Residential Construction Guide
Learn Building Basics
This downloadable, 26-page guide is full of diagrams and details about plumbing, electrical, and more.
PLAN 70-1300
This plan can be customized
Tell us about your desired changes so we can prepare an estimate for the design service. Click the button to submit your request for pricing, or call 1-877-222-1762 for assistance.
Plan Description
Floor Plans
Full Specs & Features
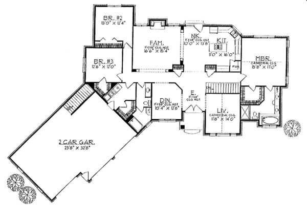
Dimension
Depth : 70'
Height : 23'
Width : 97' 4"
Area
First Floor: 2350 sq/ft height 9'
Roof
Primary Pitch : 8:12
Roof Framing : Truss
Roof Type : Shingle
Exterior Wall Framing
Exterior Wall Finish : Brick
Framing : Wood - 2x6
Rooms
Bedroom 2:
160 sq/ft width 13' x depth 12' 4"
Bedroom 3:
150 sq/ft width 12' 6" x depth 12'
Breakfast Nook:
136 sq/ft width 10' x depth 13' 8"
Dining Room:
130 sq/ft width 10' 4" x depth 12' 8"
Family Room:
252 sq/ft width 16' 6" x depth 15' 4"
Garage:
773 sq/ft width 23' 8" x depth 32' 8"
Kitchen:
176 sq/ft width 11' x depth 16'
Living Room:
163 sq/ft width 11' 8" x depth 14'
Master Bedroom:
266 sq/ft width 15' 8" x depth 17'
What's Included In This Plan Set
- Cover Sheet: Cover sheet with front rendering
- Foundation Plan(s): Foundation plans at 1/4" = 1' scale
- Floor Plan(s): Floor plans at 1/4" = 1' scale
- Exterior Elevations: Exterior elevations of all four views, front at 1/4" = 1' scale, rear and sides vary from 1/8" to 1/4" = 1' scale
- Overhead Roof Plan(s): A view of the home from above showing roof pitch, peaks, valleys, and other details.
- Cross Section(s): A slice of the home from roof to foundation, showing relationships between floors, roof, and foundation.
- Building Section(s): Building sections and details as required to construct the individual design
- Electrical Plan(s): Schematic electrical plans with suggested switch, outlet, and light fixture locations
- Kitchen Cabinet Elevation(s): Interior elevation of cabinets at 1/4" = 1' scale
- Construction Notes / Detail(s): Shows basic parts and assemblies recommended for the home so the builder can see how things come together.
- Specification(s): General specification design notes
Plan Set
$959.65
$1003.00
$1202.75
$1202.75
$1912.50
Foundation
$0.00
$335.75
$335.75
Framing
$0.00
Additional Options
$335.75
$68.00
$140.25
$250.75
$33.15
$140.25
$63.75
* Alternate Foundations may take time to prepare.
** Options with a fee may take time to prepare. Please call to confirm.



