- Jump to:
- All (4)
- Floor plans (2)
Phone: 1-877-222-1762
See our Terms & Conditions and Privacy Policy.
Use Code CTBFALL
Residential Construction Guide
Learn Building Basics
This downloadable, 26-page guide is full of diagrams and details about plumbing, electrical, and more.
PLAN 70-1494
This plan can be customized
Tell us about your desired changes so we can prepare an estimate for the design service. Click the button to submit your request for pricing, or call 1-877-222-1762 for assistance.
Plan Description
Floor Plans
Full Specs & Features
Dimension
Depth : 54'
Height : 22' 10"
Width : 65' 4"
Area
Main Floor : 1575 sq/ft
Porch : 1132 sq/ft
Upper Floor : 650 sq/ft
Ceiling
Ceiling Details : Two story Great Room ceiling
Main Ceiling : 9'
Roof
Primary Pitch : 8:12
Roof Framing : Truss
Roof Load : 47 psf
Roof Type : Shingle
Secondary Pitch : 6:12
Exterior Wall Framing
Exterior Wall Finish : Siding
Framing : 2 x 6
Bedroom Features
Main Floor Master Bedroom
Split Bedrooms
Upstairs Bedrooms
Walk In Closet
Kitchen Features
Eating Bar
Kitchen Island
Walk In Pantry Cabinet Pantry
Additional Room Features
Great Room Living Room
Loft
Main Floor Laundry
Mud Room
Outdoor Spaces
Covered Front Porch
Covered Rear Porch
More
Empty Nester
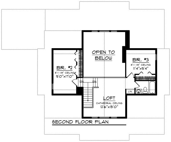
Rooms
Bath 2:
width 7' 8" x depth 5'
Bedroom 2:
width 9' x depth 17'
Bedroom 3:
width 11' 4" x depth 9' 4"
Covered Front Porch:
width 46' 8" x depth 8' 8"
Covered Rear Porch:
width 46' 4" x depth 11' 4"
Dining Room:
width 13' 8" x depth 7'
Foyer:
width 10' 8" x depth 15' 4"
Great Room:
width 17' 4" x depth 17' 8"
Kitchen:
width 16' 4" x depth 17'
Laundry:
width 6' 4" x depth 8' 8"
Loft:
width 12' 6" x depth 15'
Master Bath:
width 10' 4" x depth 8' 8"
Master Bedroom:
width 15' 4" x depth 17'
Master Closet:
width 5' 6" x depth 8' 8"
Mud Room:
width 7' 6" x depth 6'
Pantry:
width 6' x depth 6' 6"
Screened Porch:
width 17' x depth 15' 8"
What's Included In This Plan Set
- Cover Sheet: Cover sheet with front rendering
- Foundation Plan(s): Foundation plans at 1/4" = 1' scale
- Floor Plan(s): Floor plans at 1/4" = 1' scale
- Exterior Elevations: Exterior elevations of all four views, front at 1/4" = 1' scale, rear and sides vary from 1/8" to 1/4" = 1' scale
- Overhead Roof Plan(s): A view of the home from above showing roof pitch, peaks, valleys, and other details.
- Cross Section(s): A slice of the home from roof to foundation, showing relationships between floors, roof, and foundation.
- Building Section(s): Building sections and details as required to construct the individual design
- Electrical Plan(s): Schematic electrical plans with suggested switch, outlet, and light fixture locations
- Kitchen Cabinet Elevation(s): Interior elevation of cabinets at 1/4" = 1' scale
- Construction Notes / Detail(s): Shows basic parts and assemblies recommended for the home so the builder can see how things come together.
- Specification(s): General specification design notes
Plan Set
$925.65
$969.00
$1164.50
$1164.50
$1847.90
Foundation
$0.00
$335.75
$335.75
Framing
$0.00
Additional Options
$335.75
$68.00
$140.25
$250.75
$33.15
$140.25
$63.75
* Alternate Foundations may take time to prepare.
** Options with a fee may take time to prepare. Please call to confirm.



