- Jump to:
- All (3)
- Floor plans (2)
Key Specs
2086
sq ft
3
Beds
2.5
Baths
2
Floors
2
Garages
Phone: 1-877-222-1762
See our Terms & Conditions and Privacy Policy.
Use Code CTBFALL
Residential Construction Guide
Learn Building Basics
This downloadable, 26-page guide is full of diagrams and details about plumbing, electrical, and more.
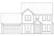
PLAN 328-371
This plan can be customized
Tell us about your desired changes so we can prepare an estimate for the design service. Click the button to submit your request for pricing, or call 1-877-222-1762 for assistance.
Plan Description
Floor Plans
Full Specs & Features
Dimension
Depth : 34'
Width : 50'
Area
First Floor: 1105 sq/ft height 9'
Second Floor: 981 sq/ft height 9'
Roof
Roof Framing : Truss
Roof Type : Asphalt
Exterior Wall Framing
Exterior Wall Finish : Stucco
Framing : Wood - 2x4
Bedroom Features
Fireplace
Formal Dining Room
Formal Living Room / Parlor
Upstairs Master Bedrooms
Walk In Closet
Kitchen Features
Breakfast Nook
Additional Room Features
Family Room Keeping Room
Main Floor Laundry
Rooms
Bedroom 2:
118 sq/ft width 9' 6" x depth 12' 6"
Bedroom 3:
130 sq/ft width 11' 4" x depth 11' 6"
Dinette:
107 sq/ft width 11' 4" x depth 9' 6"
Dining Room:
120 sq/ft width 11' 6" x depth 10' 6"
Family Room:
270 sq/ft width 18' x depth 15'
Garage:
420 sq/ft width 20' x depth 21'
Kitchen:
156 sq/ft width 12' x depth 13'
Living Room:
131 sq/ft width 10' 6" x depth 12' 6"
Master Bedroom:
265 sq/ft width 17' 8" x depth 15'
What's Included In This Plan Set
All plans are drawn at ¼” scale or larger and include :
- Foundation Plan: This page shows all necessary notations and dimensions including support columns, walls, and excavated/unexcavated areas.
- Exterior Elevations: Views of the home from all four sides showing exterior materials and measurements.
- Floor Plan(s): Detailed plans for each level showing room dimensions, wall partitions, windows and doors, etc.
- Cross Section: A slice of the home from roof to foundation, showing important details like stairs and wall construction.
- Overhead Roof Plan(s): A view of the home from above showing roof pitch, peaks, valleys, and other details.
- Construction Notes and Details: Shows the builder how things come together, like walls, the chimney, insulation, and more.
Plan Set
$675.00
$750.00
$900.00
$1700.00
$600.00
Foundation
$0.00
Framing
$0.00
Additional Options
$60.00
$100.00
$39.00
$100.00
$40.00
* Alternate Foundations may take time to prepare.
** Options with a fee may take time to prepare. Please call to confirm.



