- Jump to:
- All (4)
- Floor plans (2)
Phone: 1-877-222-1762
See our Terms & Conditions and Privacy Policy.
Use Code CTBFALL
Residential Construction Guide
Learn Building Basics
This downloadable, 26-page guide is full of diagrams and details about plumbing, electrical, and more.
PLAN 72-126
This plan can be customized
Tell us about your desired changes so we can prepare an estimate for the design service. Click the button to submit your request for pricing, or call 1-877-222-1762 for assistance.
Plan Description
Floor Plans
Full Specs & Features
Dimension
Depth : 50'
Height : 27'
Width : 32' 8"
Area
First Floor: 1111 sq/ft height 8'
Second Floor: 886 sq/ft
Roof
Primary Pitch : 6:12
Roof Framing : Conventional
Roof Type : Shingle
Exterior Wall Framing
Exterior Wall Finish : Siding
Framing : Wood - 2x6
Bedroom Features
Upstairs Master Bedrooms
Walk In Closet
Kitchen Features
Breakfast Nook
Eating Bar
Additional Room Features
Sunroom
Lot Characteristics
Suited For Narrow Lot
Outdoor Spaces
Covered Front Porch
Screened Porch
Rooms
3rd BR Closet:
12 sq/ft width 2' 1" x depth 6'
Basement Foundation:
1239 sq/ft width 30' x depth 41' 4"
Bathroom 2:
56 sq/ft width 7' 4" x depth 7' 8"
Bedroom 2:
128 sq/ft width 11' 4" x depth 11' 4"
Bedroom 2 Closet:
20 sq/ft width 5' 2" x depth 4'
Bedroom 3:
134 sq/ft width 11' 10" x depth 11' 4"
Bedroom 3 Closet:
20 sq/ft width 5' 2" x depth 4'
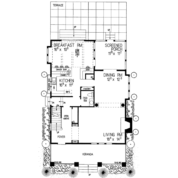
Breakfast Room:
175 sq/ft width 16' 8" x depth 10' 6"
Dining Room:
152 sq/ft width 12' x depth 12' 8"
Foyer:
109 sq/ft width 8' x depth 13' 8"
Hall Closet:
13 sq/ft width 2' 1" x depth 6' 3"
Kitchen:
186 sq/ft width 16' 8" x depth 11' 2"
Living Room:
256 sq/ft width 18' 4" x depth 14'
Master Bathroom:
103 sq/ft width 7' 10" x depth 13' 2"
Master Bedroom:
197 sq/ft width 12' 4" x depth 16'
Master Closet:
48 sq/ft width 8' x depth 6' 1"
Porch - Front:
202 sq/ft width 6' 8" x depth 30' 4"
Porch - Rear:
132 sq/ft width 11' 10" x depth 11' 2"
Powder Room:
30 sq/ft width 5' x depth 6'
What's Included In This Plan Set
All plans are drawn at ¼” scale or larger and include :
- Foundation Plan: This page shows all necessary notations and dimensions including support columns, walls, and excavated/unexcavated areas.
- Exterior Elevations: Views of the home from all four sides showing exterior materials and measurements.
- Floor Plan(s): Detailed plans for each level showing room dimensions, wall partitions, windows and doors, etc.
- Cross Section: A slice of the home from roof to foundation, showing important details like stairs and wall construction.
- Overhead Roof Plan(s): A view of the home from above showing roof pitch, peaks, valleys, and other details.
- Construction Notes and Details: Shows the builder how things come together, like walls, the chimney, insulation, and more.
Plan Set
$1108.80
$1247.40
$1386.00
$970.20
Foundation
$0.00
Additional Options
$195.00
$60.00
$495.00
$150.00
$295.00
$39.00
$150.00
$85.00
$0.00
$995.00
* Alternate Foundations may take time to prepare.
** Options with a fee may take time to prepare. Please call to confirm.



