- Jump to:
- All (5)
- Floor plans (1)
Key Specs
1953
sq ft
4
Beds
2.5
Baths
1
Floors
3
Garages
Phone: 1-877-222-1762
See our Terms & Conditions and Privacy Policy.
Use Code CTBFALL
Residential Construction Guide
Learn Building Basics
This downloadable, 26-page guide is full of diagrams and details about plumbing, electrical, and more.
PLAN 1098-3
This plan can be customized
Tell us about your desired changes so we can prepare an estimate for the design service. Click the button to submit your request for pricing, or call 1-877-222-1762 for assistance.
Plan Description
Floor Plans
Full Specs & Features
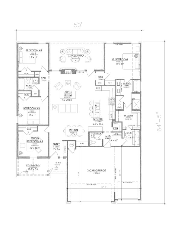
Dimension
Depth : 64' 5"
Height : 25' 7"
Width : 50'
Area
Garage : 676 sq/ft
Main Floor : 1953 sq/ft
Patios : 231 sq/ft
Porch : 135 sq/ft
Ceiling
Garage Ceiling : 8'
Main Ceiling : 10'
Roof
Primary Pitch : 8:12
Roof Framing : STICK/TRUSS
Secondary Pitch : 4:12
Exterior Wall Framing
Exterior Wall Finish : BRICK/STONE/SIDING
Framing : STICK/TRUSS
Bedroom Features
Main Floor Master Bedroom
Kitchen Features
Kitchen Island
Additional Room Features
Den Office Study Computer
Exercise Room
Great Room Living Room
Hobby Rec Room Game Room
Main Floor Laundry
Media Room
Mud Room
Play Flex Room
Garage Features
Front Entry Garage
Lot Characteristics
Suited For View Lot
Outdoor Spaces
Covered Front Porch
Covered Rear Porch
More
Additional Half Bath
Economical To Build
What's Included In This Plan Set
- Foundation Plan(s): Includes dimensioned foundation plan with footing details.
- Floor Plan(s): Shows a window and door schedule and placements, dimensions of interior and exterior spaces.
- Exterior Elevations: Four exterior views of the residence with other miscellaneous details and/or renderings of the house.
- Overhead Roof Plan(s): Birds eye view showing ridges, valleys and roof pitch.
- Cross Section(s): Section through home displaying necessary information about framing and other miscellaneous data.
- Electrical Plan(s): Displays all lighting fixtures, outlets and other necessary electrical items.
- Construction Notes / Detail(s): Special notes pertaining to the build of the residence, assembly information, any specific code notes.
- Wall Section(s): Shows the elements needed to construct the walls, and an interior finish schedule.
- Door / Window Schedule(s): A list of all the doors and windows needed to construct the house. This can help with estimating materials costs.
Plan Set
$1100.75
$1313.25
$1610.75
$1950.75
Foundation
$0.00
$255.00
Framing
$0.00
$250.75
Additional Options
$191.25
$140.25
$33.15
$140.25
* Alternate Foundations may take time to prepare.
** Options with a fee may take time to prepare. Please call to confirm.



