- Jump to:
- All (8)
- Floor plans (2)
Phone: 1-877-222-1762
See our Terms & Conditions and Privacy Policy.
Use Code CTBFALL
Residential Construction Guide
Learn Building Basics
This downloadable, 26-page guide is full of diagrams and details about plumbing, electrical, and more.
PLAN 929-943
This plan can be customized
Tell us about your desired changes so we can prepare an estimate for the design service. Click the button to submit your request for pricing, or call 1-877-222-1762 for assistance.
Plan Description
Floor Plans
Full Specs & Features
Dimension
Depth : 41' 2"
Height : 27'
Width : 95' 5"
Area
First Floor: 1500 sq/ft height 9'
Garage: 576 sq/ft
Second Floor: 447 sq/ft height 9'
Roof
Primary Pitch : 12:12
Roof Type : Asphalt
Secondary Pitch : 11:12
Exterior Wall Framing
Exterior Wall Finish : Siding/Stone
Framing : Wood - 2x4
Bedroom Features
Fireplace
Main Floor Master Bedroom
Walk In Closet
Additional Room Features
Den Office Study Computer
Great Room Living Room
Hobby Rec Room Game Room
Main Floor Laundry
Open Floor Plan
Storage Area
Sunroom
Vaulted / Cathedral Ceilings
Outdoor Spaces
Deck
Screened Porch
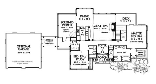
Rooms
Bedroom 2:
width 11' x depth 12'
Bedroom 2:
width 12' x depth 12'
Deck:
107 sq/ft width 14' x depth 7' 8"
Dining:
width 11' x depth 12'
Foyer:
width 7' 8" x depth 5' 2"
Garage:
576 sq/ft width 23' 4" x depth 23' 4"
Great Room:
width 17' x depth 16' 10"
Kitchen:
width 8' x depth 9' 2"
Loft:
width 12' 4" x depth 11' 2"
Master Bedroom:
width 13' 6" x depth 15' 8"
Porch Front:
38 sq/ft width 7' 8" x depth 4' 10"
Porch Screened:
257 sq/ft width 12' 6" x depth 16'
What's Included In This Plan Set
- Cover Sheet: A rendering of the front exterior of the house.
- Foundation Plan(s): This plan gives the foundation layout, including support walls, excavated and unexcavated areas, if any, foundation notes and details, and floor framing.
- Floor Plan(s): These plans show the layout of each floor of the house. Rooms and interior spaces are carefully dimensioned and keys are given for cross-section details provided later in the plans, as well as window and door schedules. These plans may also show the location of kitchen appliances and plumbing fixtures, and may suggest locations for electrical fixtures, switches and outlets.
- Exterior Elevations: Included are front, rear, left and right sides of the house. Exterior materials, details and measurements are also given.
- Interior Elevations: The interior elevation drawings show a suggested layout design of cabinets, utility rooms, fireplaces, bookcases, built-in units and other special interior features depending on the nature and complexity of the item.
- Overhead Roof Plan(s): The roof plan shows a bird's eye view of the overall layout of the roof, ridges, valleys, and slopes.
- Cross Section(s): Important changes in floor, ceiling and roof heights or the relationship of one level to another are called out. Also shown, when applicable, are exterior details such as railing and banding.
- Construction Notes / Detail(s): Shows basic parts and assemblies recommended for the home so the builder can see how things come together.
- Door / Window Schedule(s): Sizes, quantities and descriptions of all doors and windows shown on the plan.
- Structural Information: Overall layout and necessary details for the ceiling, second-floor framing (if applicable) and roof construction. If trusses are used, it's suggested that you use a local truss manufacturer to design your trusses to comply with your local codes and regulations. Important: design loads and weather conditions vary by region. As a result the size, spacing, and layout of all structural elements in this home design may need approval by a structural engineer or code official based on your specific site location.
- Code Drawn To: Each plan is designed to be consistent with CABO One and Two Family Dwelling Code or the International Residential Code in effect at the time the plan was created. Modifications may be necessary to meet applicable building codes, ordinances, local climatic, and geographical design criteria. Consult a builder, architect or other construction professional as necessary. Manufacturer instructions should be followed for all materials, appliances, and systems. Heating/air conditioning layouts, plumbing pipe layouts, and electrical wiring layouts are not included. Consult a local mechanical contractor for systems suitable for local climate conditions.
Plan Set
$1296.25
$2252.50
$1126.25
Foundation
$0.00
Framing
$0.00
Additional Options
$208.25
$140.25
$33.15
$140.25
$289.00
* Alternate Foundations may take time to prepare.
** Options with a fee may take time to prepare. Please call to confirm.
 
       
       
                 
                         
                         
                 
                 
                 
                 
                 
                 
                 
                        


