- Jump to:
- All (6)
- Floor plans (3)
Key Specs
1935
sq ft
3
Beds
3
Baths
2
Floors
2
Garages
Phone: 1-877-222-1762
See our Terms & Conditions and Privacy Policy.
Use Code CTBFALL
Residential Construction Guide
Learn Building Basics
This downloadable, 26-page guide is full of diagrams and details about plumbing, electrical, and more.
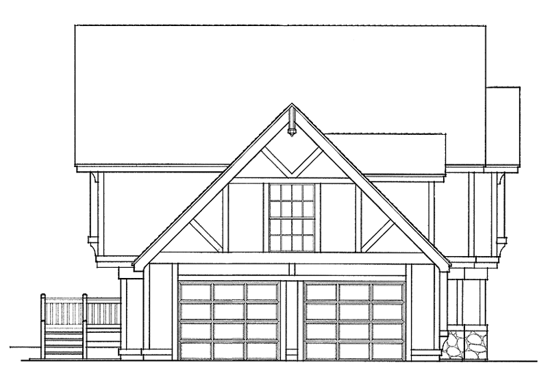
PLAN 1037-37
This plan can be customized
Tell us about your desired changes so we can prepare an estimate for the design service. Click the button to submit your request for pricing, or call 1-877-222-1762 for assistance.
Plan Description
Floor Plans
Full Specs & Features
Dimension
Depth : 35'
Height : 28'
Width : 64'
Area
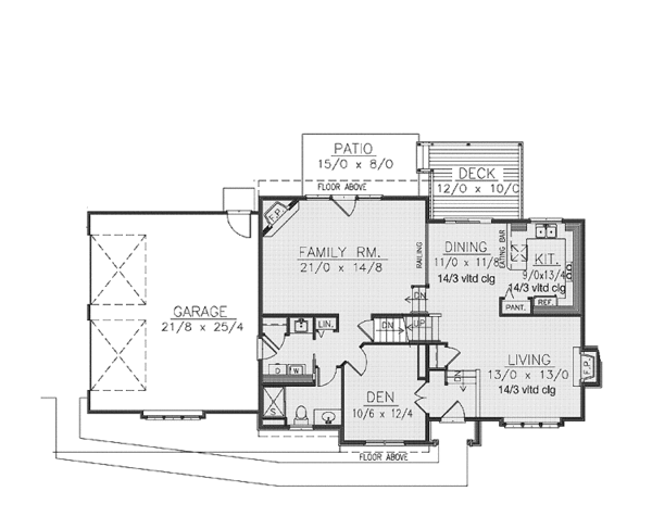
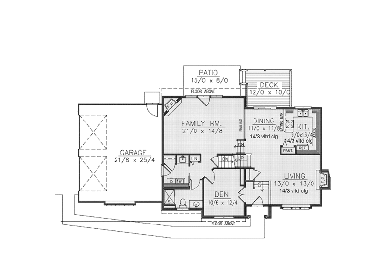
Basement Unfinished: 554 sq/ft
Bonus: 336 sq/ft
First Floor: 1210 sq/ft height 8'
Second Floor: 725 sq/ft height 8'
Roof
Roof Framing : Truss
Exterior Wall Framing
Exterior Wall Finish : Stone/Stucco
Framing : Wood - 2x6
Bedroom Features
Fireplace
Kitchen Features
Breakfast Nook
Kitchenette Wet Bar
Walk In Pantry Cabinet Pantry
Additional Room Features
Den Office Study Computer
Family Room Keeping Room
Master Sitting Area
Unfinished Future Space
Outdoor Spaces
Courtyard
Deck
Rooms
Bedroom 2:
115 sq/ft width 10' 6" x depth 11'
Bedroom 3:
110 sq/ft width 10' 2" x depth 10' 10"
Bonus Room - Finished:
279 sq/ft width 21' 6" x depth 13'
Deck:
120 sq/ft width 12' x depth 10'
Den:
129 sq/ft width 10' 6" x depth 12' 4"
Dining Room:
128 sq/ft width 11' x depth 11' 8"
Family Room:
308 sq/ft width 21' x depth 14' 8"
Garage:
548 sq/ft width 21' 8" x depth 25' 4"
Kitchen:
119 sq/ft width 9' x depth 13' 4"
Living Room:
169 sq/ft width 13' x depth 13'
Master Bedroom:
172 sq/ft width 13' 10" x depth 12' 6"
Patio:
120 sq/ft width 15' x depth 8'
What's Included In This Plan Set
All plans are drawn at ¼” scale or larger and include :
- Foundation Plan: This page shows all necessary notations and dimensions including support columns, walls, and excavated/unexcavated areas.
- Exterior Elevations: Views of the home from all four sides showing exterior materials and measurements.
- Floor Plan(s): Detailed plans for each level showing room dimensions, wall partitions, windows and doors, etc.
- Cross Section: A slice of the home from roof to foundation, showing important details like stairs and wall construction.
- Overhead Roof Plan(s): A view of the home from above showing roof pitch, peaks, valleys, and other details.
- Construction Notes and Details: Shows the builder how things come together, like walls, the chimney, insulation, and more.
Plan Set
$900.00
$950.00
$1000.00
$1600.00
$800.00
Foundation
$0.00
Framing
$0.00
Additional Options
$200.00
$60.00
$100.00
$39.00
$100.00
$60.00
* Alternate Foundations may take time to prepare.
** Options with a fee may take time to prepare. Please call to confirm.



