- Jump to:
- All (4)
- Floor plans (2)
Key Specs
1697
sq ft
3
Beds
2
Baths
2
Floors
0
Garages
Phone: 1-877-222-1762
See our Terms & Conditions and Privacy Policy.
Use Code CTBFALL
Residential Construction Guide
Learn Building Basics
This downloadable, 26-page guide is full of diagrams and details about plumbing, electrical, and more.
PLAN 23-855
This plan can be customized
Tell us about your desired changes so we can prepare an estimate for the design service. Click the button to submit your request for pricing, or call 1-877-222-1762 for assistance.
Plan Description
Floor Plans
Full Specs & Features
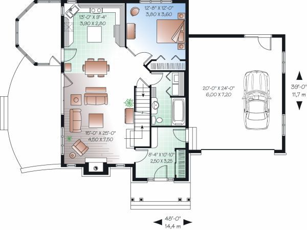
Dimension
Depth : 39'
Height : 28'
Width : 48'
Area
Bonus: 375 sq/ft
First Floor: 1024 sq/ft height 8'
Garage: 531 sq/ft
Second Floor: 673 sq/ft height 8'
Ceiling
Main Ceiling : 9'
Upper Ceiling Ft : 8'
Roof
Primary Pitch : 14:12
Roof Framing : Truss
Roof Type : Shingle
Exterior Wall Framing
Exterior Wall Finish : Brick/Stone
Framing : Wood - 2x6
Bedroom Features
Main Floor Bedrooms
Kitchen Features
Kitchen Island
Additional Room Features
Mud Room
Play Flex Room
Storage Area
Unfinished Future Space
Lot Characteristics
Suited For Narrow Lot
Outdoor Spaces
Covered Front Porch
Rooms
Bathroom 2:
84 sq/ft width 7' 4" x depth 11' 6"
Bathroom 2:
67 sq/ft width 7' 8" x depth 8' 10"
Bedroom 2:
217 sq/ft width 15' 2" x depth 14' 4"
Bedroom 2 Closet:
13 sq/ft width 2' x depth 6' 7"
Bedroom 3:
126 sq/ft width 11' 2" x depth 11' 4"
Bedroom 3 Closet:
6 sq/ft width 2' x depth 3' 5"
Bonus Room - Finished:
320 sq/ft width 20' x depth 16'
Coat Closet:
12 sq/ft width 2' x depth 6' 1"
Dining Room:
375 sq/ft width 15' x depth 25'
Foyer:
90 sq/ft width 8' 4" x depth 10' 10"
Garage:
453 sq/ft width 20' x depth 22' 8"
Kitchen:
121 sq/ft width 13' x depth 9' 4"
Linen Closet:
9 sq/ft width 5' 8" x depth 1' 8"
Master Bedroom:
152 sq/ft width 12' 8" x depth 12'
Master Closet:
15 sq/ft width 7' 6" x depth 2'
Porch - Left:
245 sq/ft width 11' 4" x depth 21' 8"
Porch - Screened:
117 sq/ft width 9' x depth 13'
What's Included In This Plan Set
Plans are typically drawn to ¼” scale and include:
- Foundation Plan(s): Foundation plans typically include: All exterior / interior dimensions, thickness of foundation walls (if variable), all structural details, location of stairwell, location and size of windows and location / dimensions of footings (where applicable and required)
- Floor Plan(s): Floor plans typically include: All interior / exterior dimensions (included but not as a schedule), location and sizes of doors / windows, indication of the structure above (second floor or roof), indication that details are on other pages
- Exterior Elevations: Front, rear, left & right sides) typically include: Floor/ceiling heights, dimensions of standard windows & roof overhangs, location of all needed flashings, height and location of foundation, type of finishing and textures, dimensions of chimney,
- Overhead Roof Plan(s): Roof plans typically include: location of all the different trusses, general overcharge of the roof compared to the floor footprint.
- Cross Section(s): A slice of the home from roof to foundation, showing relationships between floors, roof, and foundation.
- Construction Notes / Detail(s): Details typically include: Roof sections, sections of concrete wall with wood connection, sections of walls with particular called out, section of concrete porch and connection with wood frame, foundation particulars, wall components.
- Wall Section(s): Wall sections typically include: All the details and components needed in construction.
*** Please note that some plans from this designer may be delayed 5-7 days as they are updating plan content. ***
Plan Set
$1360.00
$1479.00
$2210.00
Foundation
$0.00
$361.25
$361.25
$361.25
$361.25
Additional Options
$212.50
$55.25
$140.25
$250.75
$33.15
$140.25
* Alternate Foundations may take time to prepare.
** Options with a fee may take time to prepare. Please call to confirm.



