- Jump to:
- All (2)
- Floor plans (1)
Key Specs
1428
sq ft
3
Beds
2
Baths
1
Floors
2
Garages
Phone: 1-877-222-1762
See our Terms & Conditions and Privacy Policy.
Use Code CTBFALL
Residential Construction Guide
Learn Building Basics
This downloadable, 26-page guide is full of diagrams and details about plumbing, electrical, and more.
PLAN 47-885
This plan can be customized
Tell us about your desired changes so we can prepare an estimate for the design service. Click the button to submit your request for pricing, or call 1-877-222-1762 for assistance.
Plan Description
Floor Plans
Full Specs & Features
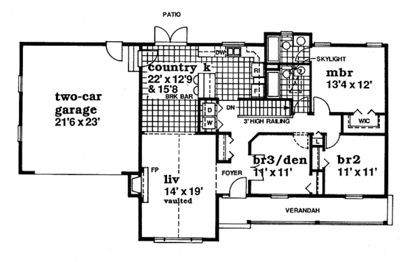
Dimension
Depth : 38'
Height : 20'
Width : 68'
Area
First Floor: 1428 sq/ft height 8'
Roof
Primary Pitch : 10:12
Roof Framing : Truss
Exterior Wall Framing
Exterior Wall Finish : Siding
Framing : Wood - 2x6
Bedroom Features
Fireplace
Formal Dining Room
Outdoor Spaces
Covered Front Porch
Covered Rear Porch
Rooms
3rd BR Closet:
8 sq/ft width 4' 2" x depth 2'
Basement Foundation:
1748 sq/ft width 38' x depth 46'
Bedroom 2:
121 sq/ft width 11' x depth 11'
Bedroom 2 Closet:
8 sq/ft width 4' 2" x depth 2'
Bedroom 3:
121 sq/ft width 11' x depth 11'
Bedroom 3 Closet:
8 sq/ft width 4' 2" x depth 2'
Breakfast Room:
160 sq/ft width 16' x depth 10'
Crawlspace Foundation:
1748 sq/ft width 38' x depth 46'
Deck:
178 sq/ft width 8' x depth 22' 4"
Foyer:
62 sq/ft width 11' 4" x depth 5' 6"
Garage:
483 sq/ft width 23' x depth 21'
Hall Bathroom:
49 sq/ft width 5' 6" x depth 9'
Hall Closet:
8 sq/ft width 4' 4" x depth 2'
Kitchen:
108 sq/ft width 9' x depth 12'
Living Room:
266 sq/ft width 19' x depth 14'
Master Bathroom:
45 sq/ft width 5' x depth 9'
Master Bedroom:
159 sq/ft width 12' x depth 13' 4"
Porch - Front:
155 sq/ft width 5' x depth 31'
Utility Room:
22 sq/ft width 6' 4" x depth 3' 6"
Walk-In Closet:
24 sq/ft width 3' 4" x depth 7' 6"
What's Included In This Plan Set
- Foundation Plan(s): This page shows all necessary notations and dimensions including footings, support columns, walls, and excavated/unexcavated areas.
- Floor Plan(s): Detailed plans for each level showing room dimensions, wall partitions, windows and doors, fixture locations, and ceiling treatments.
- Exterior Elevations: Views of the home from all four sides showing exterior materials, roof slope, ridge heights, siding and trim notes.
- Overhead Roof Plan(s): A view of the home from above showing roof pitch, peaks, valleys, and other details.
- Cross Section(s): A slice of the home from roof to foundation, showing relationships between floors, roof, and foundation.
- Construction Notes and Detail(s): Shows basic parts and assemblies recommended for the home so the builder can see how things come together.
Plan Set
$785.40
$897.60
$1009.80
$1009.80
$1570.80
Foundation
$0.00
$0.00
$233.75
$233.75
Framing
$0.00
Additional Options
$165.75
$51.00
$420.75
$127.50
$250.75
$33.15
$127.50
$72.25
$0.00
$845.75
* Alternate Foundations may take time to prepare.
** Options with a fee may take time to prepare. Please call to confirm.
 
       
       
                 
                         
                 
                 
                 
                 
                 
                 
                 
                 
                 
                 
                         
                        


