- Jump to:
- All (4)
- Floor plans (2)
Key Specs
1242
sq ft
3
Beds
2.5
Baths
1
Floors
2
Garages
Phone: 1-877-222-1762
See our Terms & Conditions and Privacy Policy.
Use Code CTBFALL
Residential Construction Guide
Learn Building Basics
This downloadable, 26-page guide is full of diagrams and details about plumbing, electrical, and more.
PLAN 72-715
This plan can be customized
Tell us about your desired changes so we can prepare an estimate for the design service. Click the button to submit your request for pricing, or call 1-877-222-1762 for assistance.
Plan Description
Floor Plans
Full Specs & Features
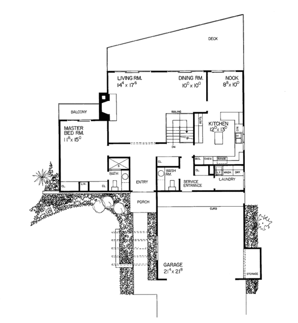
Dimension
Depth : 52'
Height : 23'
Width : 50'
Area
Basement Living: 1242 sq/ft height 8'
First Floor: 1242 sq/ft height 8'
Roof
Primary Pitch : 4:12
Roof Framing : Truss
Exterior Wall Framing
Exterior Wall Finish : Siding
Framing : Wood - 2x4
Bedroom Features
Fireplace
Formal Dining Room
Formal Living Room / Parlor
Split Bedrooms
Additional Room Features
Den Office Study Computer
Family Room Keeping Room
Outdoor Spaces
Covered Front Porch
Rooms
Dining Room:
100 sq/ft width 10' x depth 10'
Living Room:
250 sq/ft width 17' 6" x depth 14' 4"
Master Bedroom:
175 sq/ft width 15' x depth 11' 8"
What's Included In This Plan Set
All plans are drawn at ¼” scale or larger and include :
- Foundation Plan: This page shows all necessary notations and dimensions including support columns, walls, and excavated/unexcavated areas.
- Exterior Elevations: Views of the home from all four sides showing exterior materials and measurements.
- Floor Plan(s): Detailed plans for each level showing room dimensions, wall partitions, windows and doors, etc.
- Cross Section: A slice of the home from roof to foundation, showing important details like stairs and wall construction.
- Overhead Roof Plan(s): A view of the home from above showing roof pitch, peaks, valleys, and other details.
- Construction Notes and Details: Shows the builder how things come together, like walls, the chimney, insulation, and more.
Plan Set
$785.40
$897.60
$1009.80
Foundation
$233.75
$233.75
$233.75
$233.75
Framing
$0.00
Additional Options
$165.75
$51.00
$420.75
$127.50
$250.75
$33.15
$127.50
$72.25
$0.00
$845.75
* Alternate Foundations may take time to prepare.
** Options with a fee may take time to prepare. Please call to confirm.



