BuilderHousePlans.com BuilderHousePlans.com

Questions about this plan? Visit BuilderHousePlans.com today or call 1-877-222-1762

View plan at /plan/3437-square-feet-4-bedroom-3-50-bathroom-2-garage-traditional-classical-southern-sp375924

Plan 1069-38
3437 sq/ft
4 beds
3.5 baths
81' 4" wide
39' 9" deep
Plan QR Code
Pricing
Plan Set
PDF Set
$1750.00
CAD and PDF Set
$2350.00
PDF Unlimited Build
$2500.00
CAD and PDF Set Unlimited Build
$3050.00
Foundation
Basement
+$300.00
Crawlspace
+$300.00
Daylight Basement
+$300.00
Monolithic Slab
+$300.00
Walk Out Basement
+$300.00
Framing
Wood 2x6
$0.00
Wood 2x4
$300.00
Wood 2x8
$500.00
Block
$800.00
Audio Video Design
Each
$165.00
Construction Guide
Each
$39.00
Lighting Design
Each
$165.00

Full Specs & Features


Dimension
Depth : 39' 9"
Height : 33'
Width : 81' 4"
Area
Garage : 545 sq/ft
Main Floor : 1850 sq/ft
Porch : 22 sq/ft
Upper Floor : 1587 sq/ft
*Total Square Footage only includes conditioned space and does not include garages, porches, bonus rooms, or decks.
Ceiling
Garage Ceiling : 10'
Main Ceiling : 10'
Upper Ceiling Ft : 9'
Roof
Primary Pitch : 10/12
Roof Framing : trus and stick
Roof Load : per local code
Roof Type : wood
Secondary Pitch : 6/12
Exterior Wall Framing
Exterior Wall Finish : stone, lap siding
Framing : 2x6
Insulation : per local code
Bedroom Features
2 Master Suites
Guest Suite
Lower Level Bedrooms
Main Floor Bedrooms
Main Floor Master Bedroom
Upstairs Bedrooms
Upstairs Master Bedrooms
Walk In Closet
Kitchen Features
Breakfast Nook
Butler's Pantry
Eating Bar
Kitchen Island
Walk In Pantry Cabinet Pantry
Additional Room Features
Great Room Living Room
Mud Room
Storage Area
Upstairs Laundry
Garage Features
Front Entry Garage
Lot Characteristics
Suited For Corner Lot
Suited For Sloping Lot
Suited For View Lot
Outdoor Spaces
Covered Front Porch
Covered Rear Porch
More
Additional Half Bath
Jack & Jill Bath

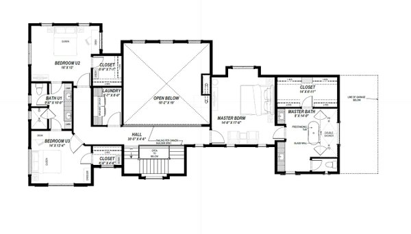
Floor Plan - Main Floor

Architectural House Design - Traditional Floor Plan - Main Floor Plan #1069-38

Floor Plan - Upper Floor

Architectural House Design - Traditional Floor Plan - Upper Floor Plan #1069-38
BuilderHousePlans.com BuilderHousePlans.com
Questions about this plan? Visit BuilderHousePlans.com today or call 1-877-222-1762
View this plan at /plan/3437-square-feet-4-bedroom-3-50-bathroom-2-garage-traditional-classical-southern-sp375924

In addition to the house plans you order, you may also need a site plan that shows where the house is going to be located on the property. You might also need beams sized to accommodate roof loads specific to your region. Your home builder can usually help you with this. You may also need a septic design unless your lot is served by a sanitary sewer system. Many areas now have area-specific energy codes that also have to be followed. This normally involves filling out a simple form providing documentation that your house plans are in compliance.

To find out what documents you should expect with your house plans, see /help/faq#faq13.

In some regions, there is a second step you will need to take to insure your house plans are in compliance with local codes. Some areas of North America have very strict engineering requirements. Examples of this would be earthquake-prone areas of California and the Pacific Coast, hurricane risk areas of the Florida, Gulf & Carolina Coasts. New York, New Jersey, Nevada, and parts of Illinois require review by a local professional as well. If you are building in these areas, it is most likely you will need to hire a state licensed structural engineer to analyze the design and provide additional drawings and calculations required by your building department. If you aren’t sure, building departments typically have a handout they will give you listing all of the items they require to submit for and obtain a building permit.

Additionally, stock plans do not have a professional stamp attached. If your building department requires one, they will only accept a stamp from a professional licensed in the state where you plan to build. In this case, you will need to take your house plans to a local engineer or architect for review and stamping. In addition, plans which are used to construct homes in Nevada are required to be drawn by a licensed Nevada architect.

Note: All sales on house plans are final. No refunds or exchanges can be given once your order has been fulfilled or once we have begun to customize a home plan to your specifications.