BuilderHousePlans.com BuilderHousePlans.com

Questions about this plan? Visit BuilderHousePlans.com today or call 1-877-222-1762

View plan at /plan/3238-square-feet-4-bedroom-3-50-bathroom-2-garage-sp200801

Plan 929-368
3238 sq/ft
4 beds
3.5 baths
72' wide
60' 7" deep
Plan QR Code
Pricing
Plan Set
PDF Set
$1925.00
CAD Unlimited Build
$3350.00
Foundation
Crawlspace
+$0.00
Basement
+$470.00
Framing
Wood 2x4
$0.00
Audio Video Design
Each
$165.00
Construction Guide
Each
$39.00
Lighting Design
Each
$165.00
Material List
Each
+$450.00

Full Specs & Features


Dimension
Depth: 60' 7"
Height: 28'
Width: 72'
Area
Bonus: 513 sq/ft
First Floor: 2516 sq/ft height 9'
Second Floor: 722 sq/ft
*Total Square Footage only includes conditioned space and does not include garages, porches, bonus rooms, or decks.
Roof
Primary Pitch: 9:12
Roof Framing: Conventional
Exterior Wall Framing
Exterior Wall Finish: Siding
Framing: Wood - 2x4
Bedroom Features
Fireplace
Formal Dining Room
Additional Room Features
Great Room Living Room
Outdoor Spaces
Covered Rear Porch
Rooms

Bedroom 2:

189 sq/ft width 13' 6" x depth 14'

Bedroom 3:

152 sq/ft width 11' 7" x depth 13' 2"

Bedroom 4:

179 sq/ft width 11' 7" x depth 15' 6"

Bonus Room - Finished:

575 sq/ft width 23' x depth 25'

Breakfast Room:

87 sq/ft width 9' 4" x depth 9' 4"

Dining Room:

184 sq/ft width 13' 2" x depth 14'

Foyer:

98 sq/ft width 7' x depth 14'

Garage:

575 sq/ft width 23' x depth 25'

Gathering Room:

436 sq/ft width 22' x depth 19' 10"

Kitchen:

268 sq/ft width 18' 4" x depth 14' 8"

Laundry Room:

92 sq/ft width 7' 8" x depth 12'

Master Bathroom:

124 sq/ft width 10' 1" x depth 12' 4"

Master Bedroom:

289 sq/ft width 17' x depth 17'

Master Closet:

84 sq/ft width 7' 8" x depth 11'

Porch - Rear:

255 sq/ft width 8' 1" x depth 31' 8"

Utility Room:

6 sq/ft width 2' 2" x depth 3'

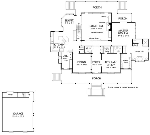
Floor Plan - Main Floor

Architectural House Design - Floor Plan - Main Floor for Country House Plan #929-368 - 4 bed, 3.5 bath

Floor Plan - Upper Floor

Architectural House Design - Floor Plan - Upper Floor for Country House Plan #929-368 - 4 bed, 3.5 bath
BuilderHousePlans.com BuilderHousePlans.com
Questions about this plan? Visit BuilderHousePlans.com today or call 1-877-222-1762
View this plan at /plan/3238-square-feet-4-bedroom-3-50-bathroom-2-garage-sp200801

In addition to the house plans you order, you may also need a site plan that shows where the house is going to be located on the property. You might also need beams sized to accommodate roof loads specific to your region. Your home builder can usually help you with this. You may also need a septic design unless your lot is served by a sanitary sewer system. Many areas now have area-specific energy codes that also have to be followed. This normally involves filling out a simple form providing documentation that your house plans are in compliance.

To find out what documents you should expect with your house plans, see /help/faq#faq13.

In some regions, there is a second step you will need to take to insure your house plans are in compliance with local codes. Some areas of North America have very strict engineering requirements. Examples of this would be earthquake-prone areas of California and the Pacific Coast, hurricane risk areas of the Florida, Gulf & Carolina Coasts. New York, New Jersey, Nevada, and parts of Illinois require review by a local professional as well. If you are building in these areas, it is most likely you will need to hire a state licensed structural engineer to analyze the design and provide additional drawings and calculations required by your building department. If you aren’t sure, building departments typically have a handout they will give you listing all of the items they require to submit for and obtain a building permit.

Additionally, stock plans do not have a professional stamp attached. If your building department requires one, they will only accept a stamp from a professional licensed in the state where you plan to build. In this case, you will need to take your house plans to a local engineer or architect for review and stamping. In addition, plans which are used to construct homes in Nevada are required to be drawn by a licensed Nevada architect.

Note: All sales on house plans are final. No refunds or exchanges can be given once your order has been fulfilled or once we have begun to customize a home plan to your specifications.