BuilderHousePlans.com BuilderHousePlans.com

Questions about this plan? Visit BuilderHousePlans.com today or call 1-877-222-1762

View plan at /plan/2388-square-feet-2-bedroom-2-50-bathroom-2-garage-beach-sp363233

Plan 455-494
2388 sq/ft
2 beds
2.5 baths
102' wide
60' 4" deep
Plan QR Code
Pricing
Plan Set
PDF Set
$1699.00
5 Copy and PDF Set
$1994.00
CAD and PDF Set Unlimited Build
$2698.00
Foundation
Walk Out Basement
+$0.00
Basement
+$299.00
Crawlspace
+$299.00
Slab
+$299.00
Framing
Wood 2x4
$0.00
Wood 2x6
$299.00
Right-Reading Reverse
Each
+$299.00
Additional Construction Sets
Each Additional Set
+$59.00/each
Audio Video Design
Each
$165.00
Construction Guide
Each
$39.00
Lighting Design
Each
$165.00
Material List
Each
+$299.00

Full Specs & Features


Dimension
Depth: 60' 4"
Height: 25'
Width: 102'
Area
Decks: 1243 sq/ft
Garage: 592 sq/ft
Main Floor: 2388 sq/ft
*Total Square Footage only includes conditioned space and does not include garages, porches, bonus rooms, or decks.
Ceiling
Ceiling Details: The covered deck, entry, and great room feature cathedral ceilings. The master bedroom has a 11 foot tall ceiling.
Main Ceiling: 10'
Roof
Primary Pitch: 10/12
Roof Framing: Stick
Secondary Pitch: 8/12, 3/12, 6/12
Exterior Wall Framing
Framing: 2x4
Bedroom Features
Main Floor Bedrooms
Main Floor Master Bedroom
Walk In Closet
Kitchen Features
Kitchen Island
Walk In Pantry Cabinet Pantry
Additional Room Features
Family Room Keeping Room
Great Room Living Room
Main Floor Laundry
Mud Room
Garage Features
Front Entry Garage
Lot Characteristics
Suited For Corner Lot
Outdoor Spaces
Grill Deck Sundeck

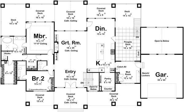
Floor Plan - Main Floor

Architectural House Design - Floor Plan - Main Floor for Beach House Plan #455-494 - 2 bed, 2.5 bath

Floor Plan - Lower Floor

Architectural House Design - Floor Plan - Lower Floor for Beach House Plan #455-494 - 2 bed, 2.5 bath
BuilderHousePlans.com BuilderHousePlans.com
Questions about this plan? Visit BuilderHousePlans.com today or call 1-877-222-1762
View this plan at /plan/2388-square-feet-2-bedroom-2-50-bathroom-2-garage-beach-sp363233

In addition to the house plans you order, you may also need a site plan that shows where the house is going to be located on the property. You might also need beams sized to accommodate roof loads specific to your region. Your home builder can usually help you with this. You may also need a septic design unless your lot is served by a sanitary sewer system. Many areas now have area-specific energy codes that also have to be followed. This normally involves filling out a simple form providing documentation that your house plans are in compliance.

To find out what documents you should expect with your house plans, see /help/faq#faq13.

In some regions, there is a second step you will need to take to insure your house plans are in compliance with local codes. Some areas of North America have very strict engineering requirements. Examples of this would be earthquake-prone areas of California and the Pacific Coast, hurricane risk areas of the Florida, Gulf & Carolina Coasts. New York, New Jersey, Nevada, and parts of Illinois require review by a local professional as well. If you are building in these areas, it is most likely you will need to hire a state licensed structural engineer to analyze the design and provide additional drawings and calculations required by your building department. If you aren’t sure, building departments typically have a handout they will give you listing all of the items they require to submit for and obtain a building permit.

Additionally, stock plans do not have a professional stamp attached. If your building department requires one, they will only accept a stamp from a professional licensed in the state where you plan to build. In this case, you will need to take your house plans to a local engineer or architect for review and stamping. In addition, plans which are used to construct homes in Nevada are required to be drawn by a licensed Nevada architect.

Note: All sales on house plans are final. No refunds or exchanges can be given once your order has been fulfilled or once we have begun to customize a home plan to your specifications.