BuilderHousePlans.com BuilderHousePlans.com

Questions about this plan? Visit BuilderHousePlans.com today or call 1-877-222-1762

View plan at /plan/1919-square-feet-3-bedroom-2-50-bathroom-2-garage-craftsman-cottage-country-sp371394

Plan 21-544
1919 sq/ft
3 beds
2.5 baths
69' wide
59' 8" deep
Plan QR Code
Pricing
Plan Set
PDF Set
$1300.00
5 Copy Set
$1400.00
5 Copy and PDF Set
$1600.00
CAD and PDF Set
$1950.00
CAD Set
$1950.00
CAD Single Build
$1950.00
PDF Unlimited Build
$2300.00
Five Copy and PDF Set Unlimited Build
$2600.00
CAD and PDF Set Unlimited Build
$2950.00
CAD Unlimited Build
$2950.00
Single Set
$1150.00
Foundation
Basement
+$0.00
Framing
Wood 2x4
$0.00
Right-Reading Reverse
Each
+$150.00
Additional Construction Sets
Each Additional Set
+$65.00/each
Additional Use License
Each
$250.00
Audio Video Design
Each
$165.00
Construction Guide
Each
$39.00
Material List
Each
+$150.00
Mirror Reversed Sets
Each Additional Set
+$50.00
Unlimited Use License
Each
$1000.00

Full Specs & Features


Dimension
Depth : 59' 8"
Height : 24' 2"
Width : 69'
Area
Bonus : 338 sq/ft
Garage : 714 sq/ft
Main Floor : 1919 sq/ft
Porch : 429 sq/ft
*Total Square Footage only includes conditioned space and does not include garages, porches, bonus rooms, or decks.
Ceiling
Main Ceiling : 9'
Roof
Primary Pitch : 10 in 12
Roof Framing : 2x4
Roof Load : Live Load: 30 # / p.s.f. Dead Load: 10 # / p.s.f. Total Load: 40 # / p.s.f.
Roof Type : Stick
Secondary Pitch : 12 in 12 & 8 in 12
Exterior Wall Framing
Exterior Wall Finish : Stone / Siding
Framing : 2x4
Insulation : Exterior Walls: 15 Ceilings/Roof: 38 Floors < one story on Crawlspace: 19 Floor areas between first and second floors (over garages, etc.): R-19
Bedroom Features
Main Floor Bedrooms
Split Bedrooms
Walk In Closet
Kitchen Features
Breakfast Nook
Walk In Pantry Cabinet Pantry
Additional Room Features
Den Office Study Computer
Exercise Room
Family Room Keeping Room
Great Room Living Room
Hobby Rec Room Game Room
Main Floor Laundry
Media Room
Play Flex Room
Storage Area
Unfinished Future Space
Garage Features
Oversized Garage
Side Entry Garage
Outdoor Spaces
Covered Front Porch
Covered Rear Porch
More
Economical To Build
Empty Nester
Energy Efficient Features
Energy Efficient Design

Floor Plan - Main Floor

Architectural House Design - Craftsman Floor Plan - Main Floor Plan #21-544

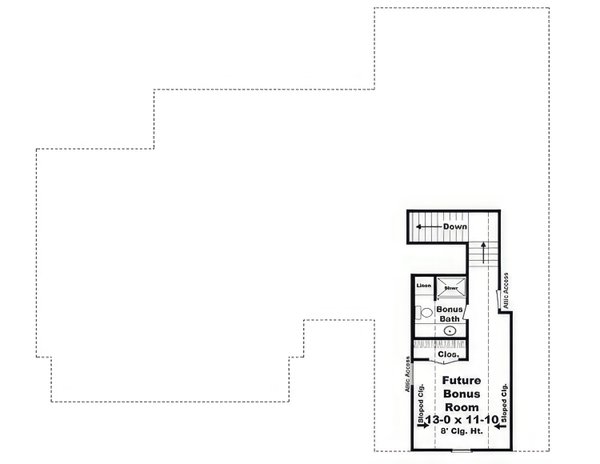
Floor Plan - Upper Floor

Architectural House Design - Craftsman Floor Plan - Upper Floor Plan #21-544
BuilderHousePlans.com BuilderHousePlans.com
Questions about this plan? Visit BuilderHousePlans.com today or call 1-877-222-1762
View this plan at /plan/1919-square-feet-3-bedroom-2-50-bathroom-2-garage-craftsman-cottage-country-sp371394

In addition to the house plans you order, you may also need a site plan that shows where the house is going to be located on the property. You might also need beams sized to accommodate roof loads specific to your region. Your home builder can usually help you with this. You may also need a septic design unless your lot is served by a sanitary sewer system. Many areas now have area-specific energy codes that also have to be followed. This normally involves filling out a simple form providing documentation that your house plans are in compliance.

To find out what documents you should expect with your house plans, see /help/faq#faq13.

In some regions, there is a second step you will need to take to insure your house plans are in compliance with local codes. Some areas of North America have very strict engineering requirements. Examples of this would be earthquake-prone areas of California and the Pacific Coast, hurricane risk areas of the Florida, Gulf & Carolina Coasts. New York, New Jersey, Nevada, and parts of Illinois require review by a local professional as well. If you are building in these areas, it is most likely you will need to hire a state licensed structural engineer to analyze the design and provide additional drawings and calculations required by your building department. If you aren’t sure, building departments typically have a handout they will give you listing all of the items they require to submit for and obtain a building permit.

Additionally, stock plans do not have a professional stamp attached. If your building department requires one, they will only accept a stamp from a professional licensed in the state where you plan to build. In this case, you will need to take your house plans to a local engineer or architect for review and stamping. In addition, plans which are used to construct homes in Nevada are required to be drawn by a licensed Nevada architect.

Note: All sales on house plans are final. No refunds or exchanges can be given once your order has been fulfilled or once we have begun to customize a home plan to your specifications.