BuilderHousePlans.com BuilderHousePlans.com

Questions about this plan? Visit BuilderHousePlans.com today or call 1-877-222-1762

View plan at /plan/1813-square-feet-3-bedroom-2-00-bathroom-2-garage-sp205781

Plan 42-538
1813 sq/ft
3 beds
2 baths
73' 6" wide
47' 5" deep
Plan QR Code
Pricing
Plan Set
5 Copy Set
$850.00
8 Copy Set
$900.00
PDF Set
$900.00
Single Set
$800.00
Foundation
Crawlspace
+$0.00
Slab
+$0.00
Framing
Wood 2x4
$0.00
Right-Reading Reverse
Each
+$175.00
Additional Construction Sets
Each Additional Set
+$60.00/each
Audio Video Design
Each
$100.00
Construction Guide
Each
$39.00
Lighting Design
Each
$100.00

Full Specs & Features


Dimension
Depth : 47' 5"
Width : 73' 6"
Area
Bonus: 239 sq/ft
First Floor: 1813 sq/ft
*Total Square Footage only includes conditioned space and does not include garages, porches, bonus rooms, or decks.
Roof
Primary Pitch : 8:12
Roof Framing : Conventional
Roof Type : Shingle
Exterior Wall Framing
Exterior Wall Finish : Siding/Stone
Framing : Wood - 2x4
Bedroom Features
Fireplace
Formal Dining Room
Main Floor Master Bedroom
Split Bedrooms
Kitchen Features
Breakfast Nook
Kitchenette Wet Bar
Additional Room Features
Great Room Living Room
Main Floor Laundry
Open Floor Plan
Garage Features
Side Entry Garage
Outdoor Spaces
Courtyard
Covered Front Porch
Rooms

3rd BR Closet:

12 sq/ft width 2' x depth 6'

Bedroom 2:

132 sq/ft width 11' x depth 12'

Bedroom 2 Closet:

30 sq/ft width 5' x depth 6'

Bedroom 3:

126 sq/ft width 11' x depth 11' 6"

Bedroom 3 Closet:

30 sq/ft width 5' x depth 6'

Bonus Room - Finished:

231 sq/ft width 11' x depth 21'

Breakfast Room:

111 sq/ft width 9' 4" x depth 12'

Dining Room:

135 sq/ft width 11' x depth 12' 4"

Foyer:

77 sq/ft width 7' x depth 11'

Garage:

400 sq/ft width 20' x depth 20'

Garage Storage:

22 sq/ft width 3' 8" x depth 6'

Gathering Room:

315 sq/ft width 15' x depth 21'

Hall Bathroom:

45 sq/ft width 5' x depth 9'

Hall Closet:

5 sq/ft width 2' x depth 2' 6"

Kitchen:

105 sq/ft width 8' 10" x depth 12'

Master Bathroom:

140 sq/ft width 10' x depth 14'

Master Bedroom:

210 sq/ft width 14' x depth 15'

Master Closet:

60 sq/ft width 6' x depth 10'

Porch - Front:

312 sq/ft width 6' x depth 52'

Porch - Rear:

142 sq/ft width 7' 6" x depth 19'

Utility Room:

49 sq/ft width 5' 6" x depth 9'

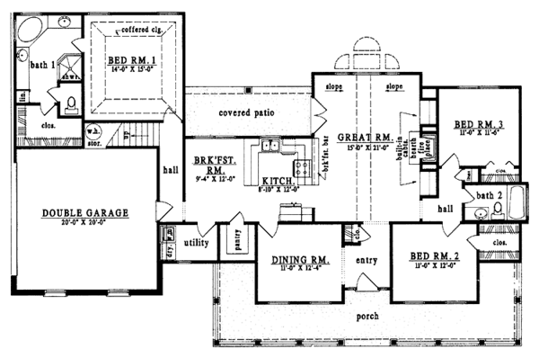
Floor Plan - Main Floor

Architectural House Design - Ranch Floor Plan - Main Floor Plan #42-538

Floor Plan - Upper Floor

Architectural House Design - Ranch Floor Plan - Upper Floor Plan #42-538

Floor Plan - Other Floor

Architectural House Design - Ranch Floor Plan - Other Floor Plan #42-538
BuilderHousePlans.com BuilderHousePlans.com
Questions about this plan? Visit BuilderHousePlans.com today or call 1-877-222-1762
View this plan at /plan/1813-square-feet-3-bedroom-2-00-bathroom-2-garage-sp205781

In addition to the house plans you order, you may also need a site plan that shows where the house is going to be located on the property. You might also need beams sized to accommodate roof loads specific to your region. Your home builder can usually help you with this. You may also need a septic design unless your lot is served by a sanitary sewer system. Many areas now have area-specific energy codes that also have to be followed. This normally involves filling out a simple form providing documentation that your house plans are in compliance.

To find out what documents you should expect with your house plans, see /help/faq#faq13.

In some regions, there is a second step you will need to take to insure your house plans are in compliance with local codes. Some areas of North America have very strict engineering requirements. Examples of this would be earthquake-prone areas of California and the Pacific Coast, hurricane risk areas of the Florida, Gulf & Carolina Coasts. New York, New Jersey, Nevada, and parts of Illinois require review by a local professional as well. If you are building in these areas, it is most likely you will need to hire a state licensed structural engineer to analyze the design and provide additional drawings and calculations required by your building department. If you aren’t sure, building departments typically have a handout they will give you listing all of the items they require to submit for and obtain a building permit.

Additionally, stock plans do not have a professional stamp attached. If your building department requires one, they will only accept a stamp from a professional licensed in the state where you plan to build. In this case, you will need to take your house plans to a local engineer or architect for review and stamping. In addition, plans which are used to construct homes in Nevada are required to be drawn by a licensed Nevada architect.

Note: All sales on house plans are final. No refunds or exchanges can be given once your order has been fulfilled or once we have begun to customize a home plan to your specifications.