- Jump to:
- All (3)
- Floor plans (2)
Key Specs
1768
sq ft
3
Beds
1.5
Baths
2
Floors
1
Garages
Phone: 1-877-222-1762
See our Terms & Conditions and Privacy Policy.
Use Code CTBFALL
Residential Construction Guide
Learn Building Basics
This downloadable, 26-page guide is full of diagrams and details about plumbing, electrical, and more.
PLAN 25-2092
This plan can be customized
Tell us about your desired changes so we can prepare an estimate for the design service. Click the button to submit your request for pricing, or call 1-877-222-1762 for assistance.
Plan Description
Floor Plans
Full Specs & Features
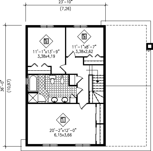
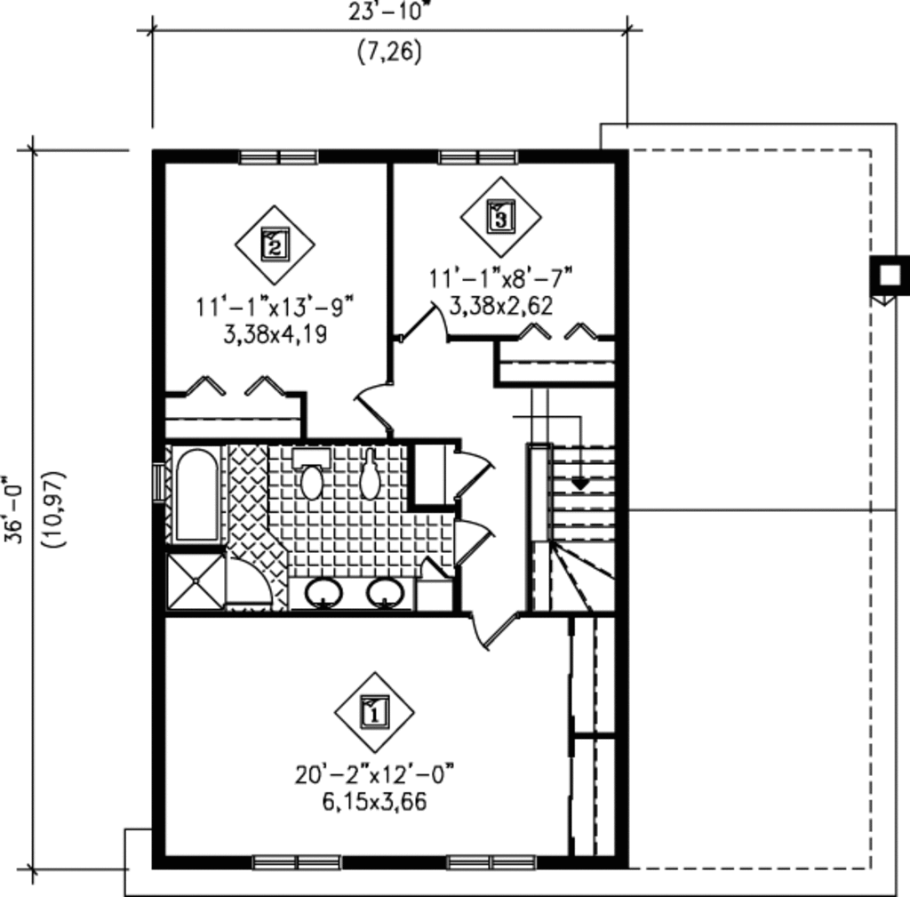
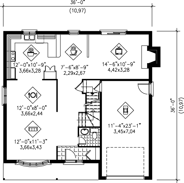
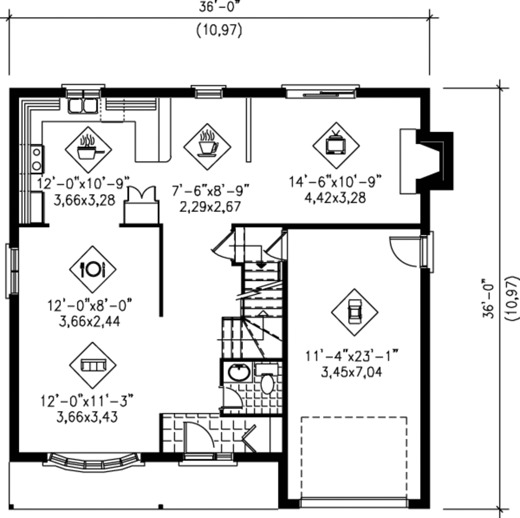
Dimension
Depth : 36'
Height : 30'
Width : 36'
Area
Basement : 910 sq/ft
Garage : 294 sq/ft
Main Floor : 910 sq/ft
Upper Floor : 858 sq/ft
Exterior Wall Framing
Framing : 2"x6"
Bedroom Features
Upstairs Master Bedrooms
Kitchen Features
Breakfast Nook
Eating Bar
Additional Room Features
Family Room Keeping Room
Unfinished Future Space
Lot Characteristics
Suited For Narrow Lot
What's Included In This Plan Set
Plans are typically drawn to ¼” scale and include:
- Foundation Plan(s): This page shows all necessary notations and dimensions including footings, support columns, walls, and excavated/unexcavated areas.
- Floor Plan(s): Detailed plans for each level showing room dimensions, wall partitions, windows and doors, fixture locations, and ceiling treatments.
- Exterior Elevations: Views of the home from all four sides showing exterior materials, roof slope, ridge heights, siding and trim notes.
- Overhead Roof Plan(s): A view of the home from above showing roof pitch, peaks, valleys, and other details.
- Cross Section(s): A slice of the home from roof to foundation, showing relationships between floors, roof, and foundation.
- Construction Notes / Detail(s): Shows basic parts and assemblies recommended for the home so the builder can see how things come together.
Plan Set
$970.00
$1015.00
$1110.00
$1990.00
Foundation
$0.00
Additional Options
$150.00
$50.00
$165.00
$295.00
$39.00
$165.00
$150.00
$250.00
* Alternate Foundations may take time to prepare.
** Options with a fee may take time to prepare. Please call to confirm.



